BIM Services

Explore BIM Services

Moria’s BIM Services

Is an intelligent model-based process that provides insight to help you plan, design, construct, and manage buildings and infrastructure.

BIM has many benefits:

  • Better Coordination, Integration
  • Cost Saving
  • Minimize Time
  • Cutting Waste
  • Risk Control

  • LOD (Level of Development) for all disciplines

    • LOD 100: Concept Design
    • LOD 200: Schematic Design
    • LOD 300: Detailed Design
    • LOD 350: Construction Documentation
    • LOD 400: Construction Stage
    • LOD 500: As-Built

  • DIMENSIONS

    • 3D Modeling: Earlier and more accurate design visualization
    • 4D scheduling data/time element: Improved management of project’s schedule milestones
    • 5D Cost Estimation, Analysis, and Tracking: Improved management of project’s schedule milestones
    • 6D Facility Management: Improved management of project’s operation

Moria’s BIM Samples

Location: Ras Al Khair, Saudi Arabia

Type: Mixed Use

Role: Detailed design, Tender documents BIM modelling (onsite & offsite services)

Site Area: 30,000 sqm

InoChem non-process Facilities project

InoChem non-process Facilities project

1. Administration Building

Ground Floor

First & second Floor

Third Floor

Administration Buildings

Administration Buildings

Administration Buildings

Administration Buildings

3D Section Perspective - Fully Coordinated

Administration Buildings

Mechanical Overall Coordination

Toilet Water and Drain Coordination

Transformer Coordination

Administration Buildings

2. Multi-Purpose Building

Ground Floor

First Floor

Section

3D Perspective

Section

3D Perspective – Fully Coordinate

3. Mosque Building

Ground Floor Plan

Mosque Building

Section

Section

4. Fire House Building

Ground Floor Plan

3D Section

Section

Section

5. Maintenance Building

Ground Floor

Mezzanine Floor

Section

Location: Doha, Qatar

Type: Hospitality With Transportation Functions

Role: MEP Design verification, ASMEP LOD300, LOD400, LOD500 BIM modelling, 2D Shop Drawings & As Built. 4D, 5D, 6D

Site Area: 32,000 sqm

Grand Cruise Terminal Project

Grand Cruise Terminal Project

Grand Cruise Terminal Project

Ground Floor

Mezzanine Floor

First Floor

Roof floor

Grand Cruise Terminal Project

Grand Cruise Terminal Project

Elevation - Partial

Section - Partial

Wall Section

Coordination MEP

Child Water System

Electrical MEP Coordination

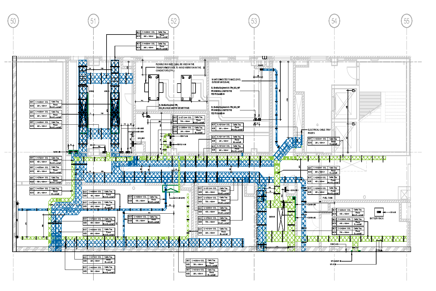
Cable Tray System

HAVC System

Fire Alarm System

Lightning System

Coordination MEP

PRC MEP Coordination

Water System Coordination

Location: Makkah, Saudi Arabia

Type: Infrastructure & Roads

Role: Architectural BIM Modelling, Shop drawings and AS built

Masar Urban Development Project

1. Pedestrian Underpass

Pedestrian Underpass

Pedestrian Underpass

Pedestrian Underpass

Pedestrian Underpass

Pedestrian Underpass

Pedestrian Underpass

Pedestrian Underpass

Pedestrian Underpass

Pedestrian Underpass

Pedestrian Underpass

2. Vehicle Underpass

Vehicle Underpass

Vehicle Underpass

Vehicle Underpass

3. Infrastructure Utility Tunnels

Infrastructure Utility Tunnels

Infrastructure Utility Tunnels